Hickory Community

Associate Architect - INTEC Group

Single Family Housing

Asheville, NC

Spring 2024

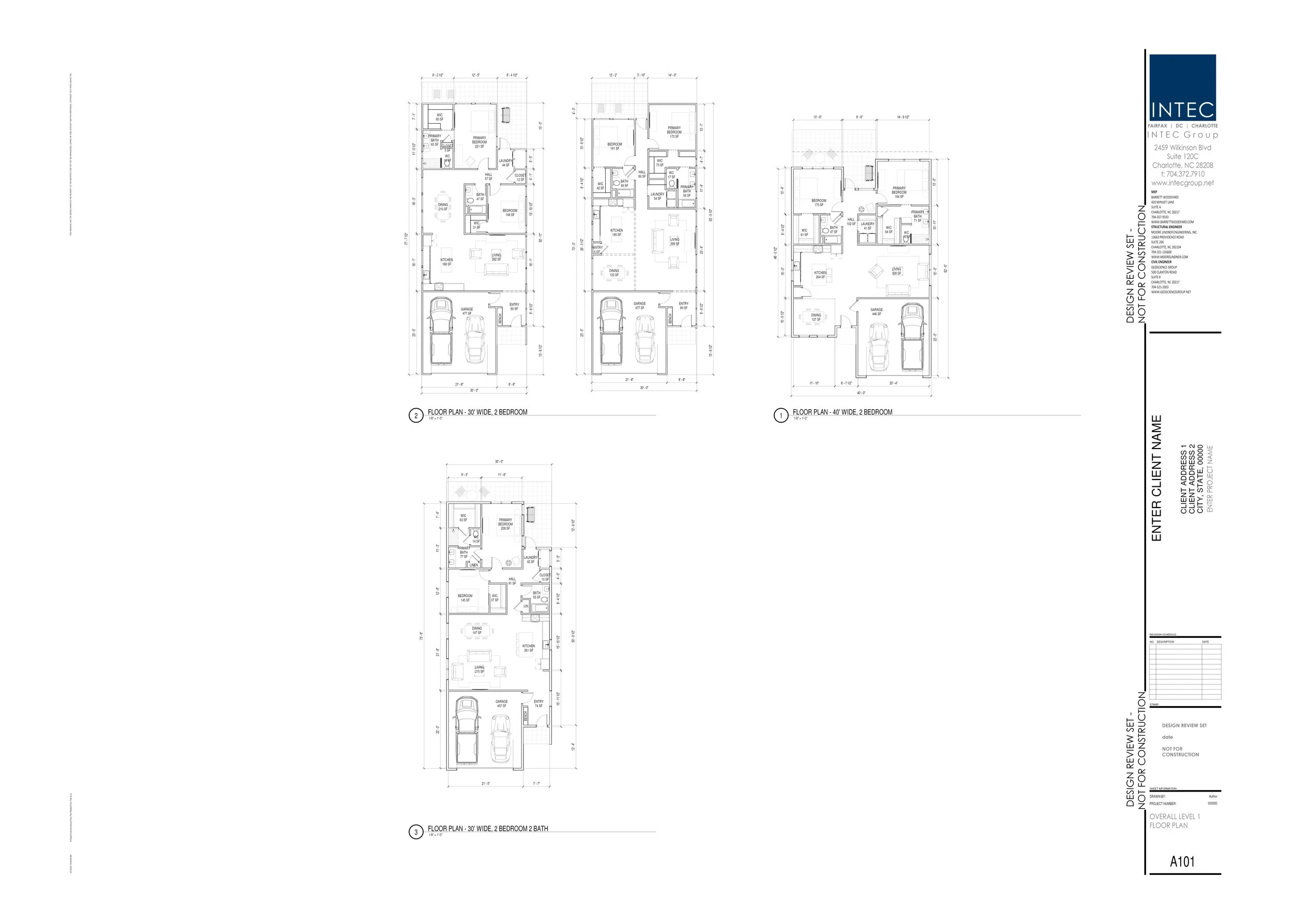
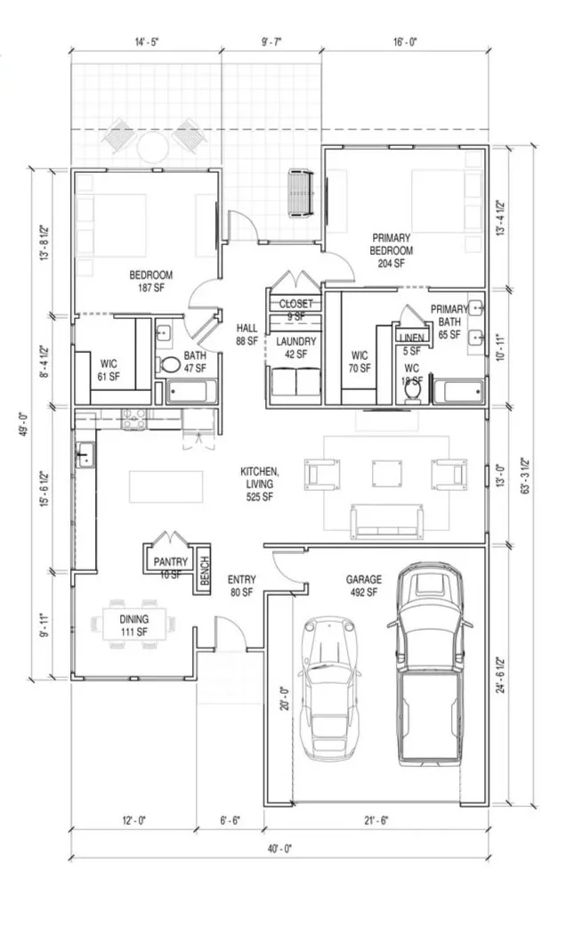
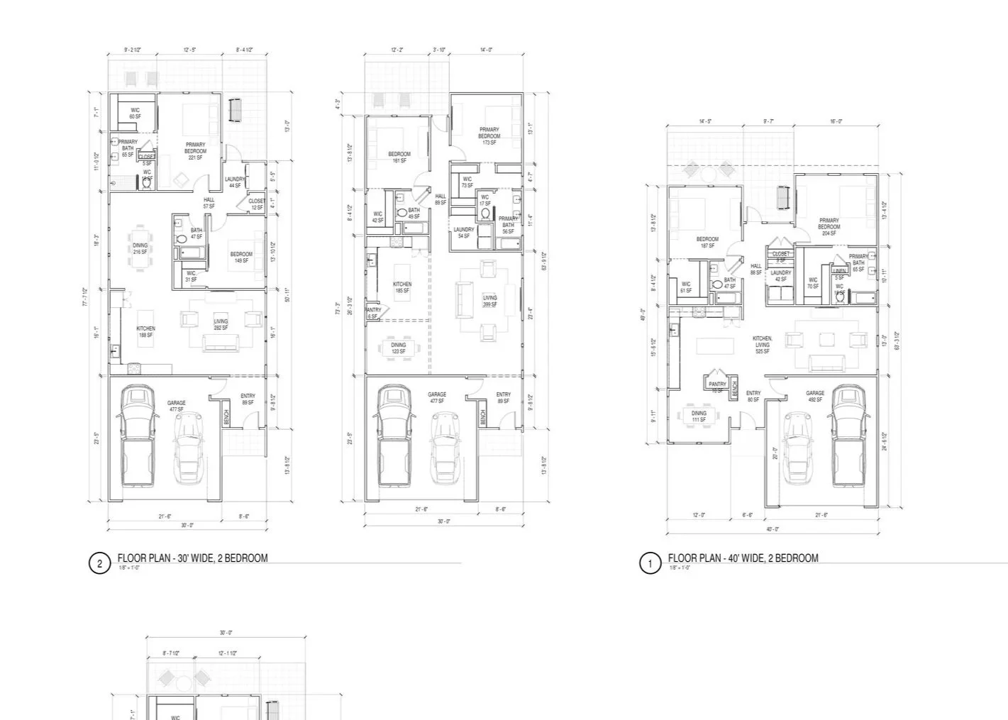
The Hickory project is a retirement community made up of single family homes. With lot sizes alternating from forty to fifty feet in width, floor plans needed to be adjustable so that a similar layout and square footage could be applied the houses on each property.

40’ UNIT PLAN

30’ UNIT PLAN

Previous
Previous

Kingston