Morganton

The Morganton project aims to develop 5 apartment buildings and 16 townhouses across 2 blocks in the downtown area of Morganton, NC.

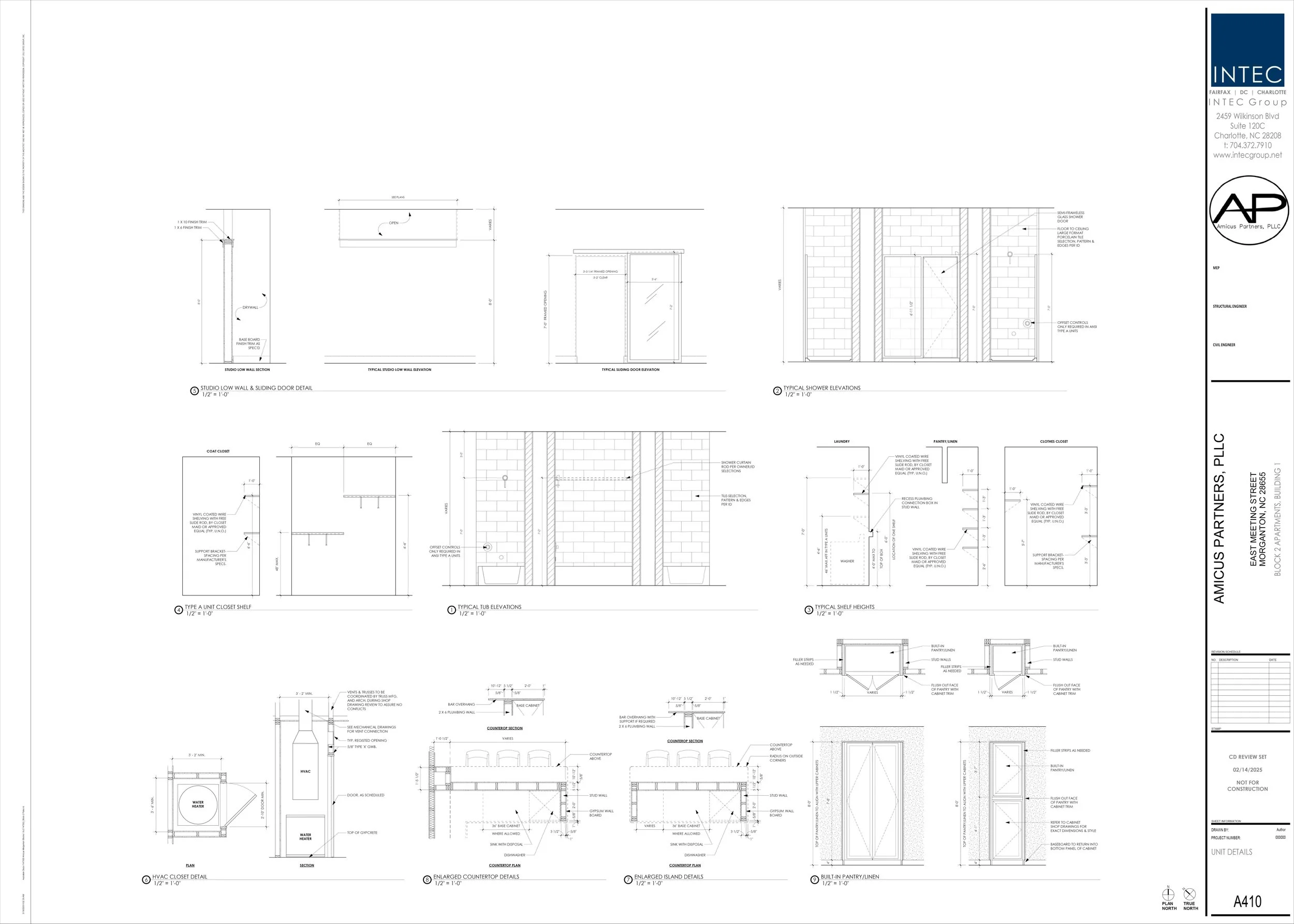
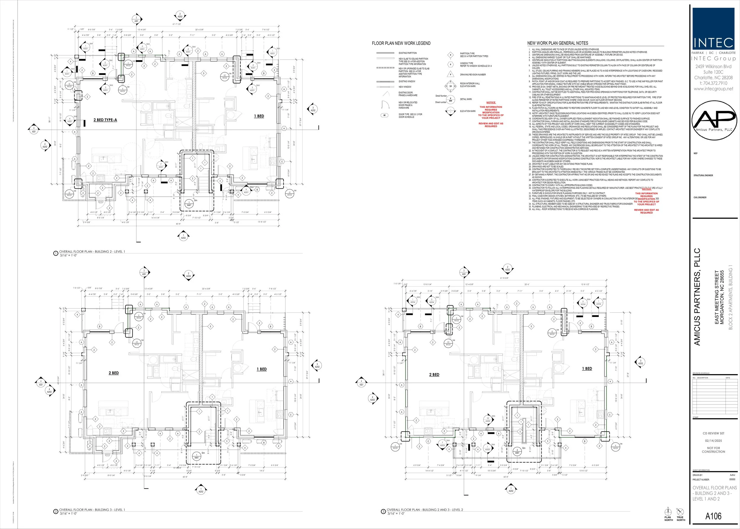
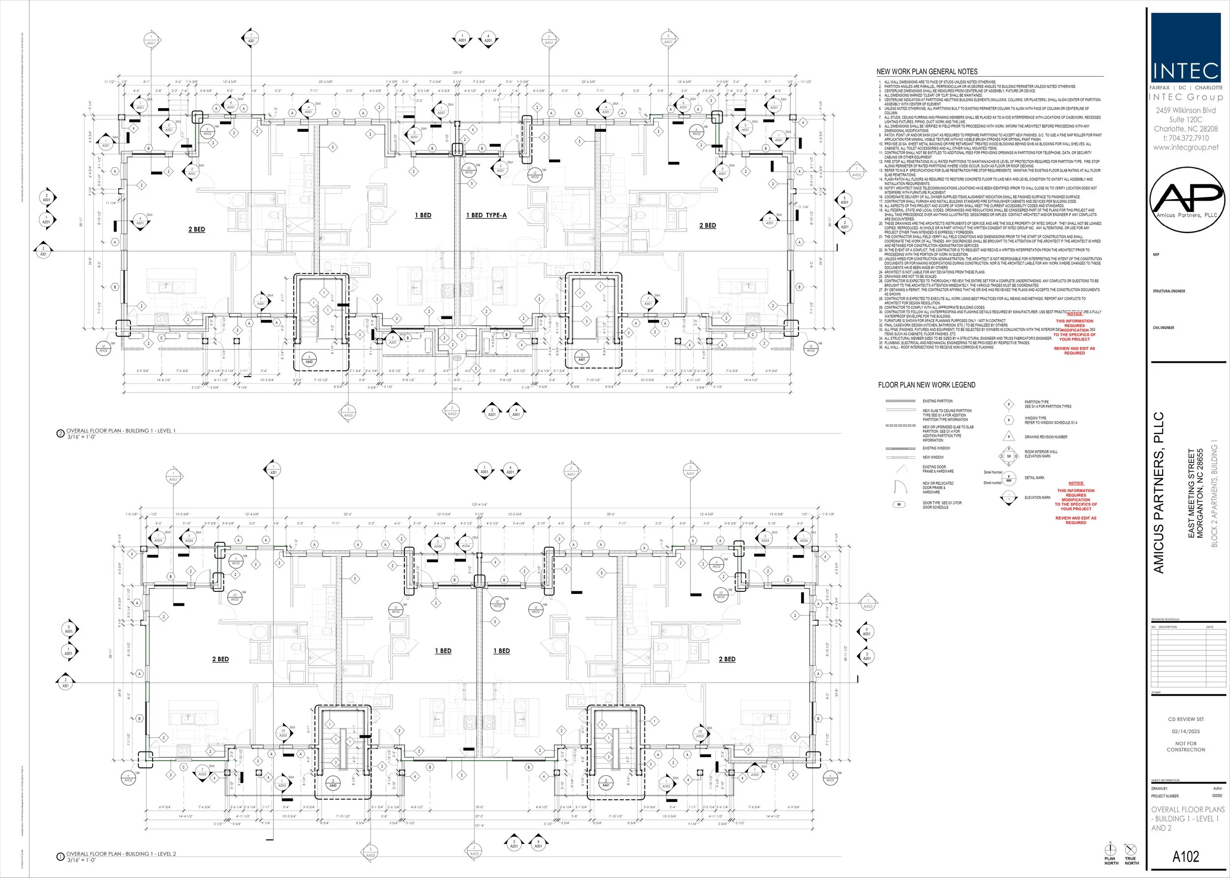
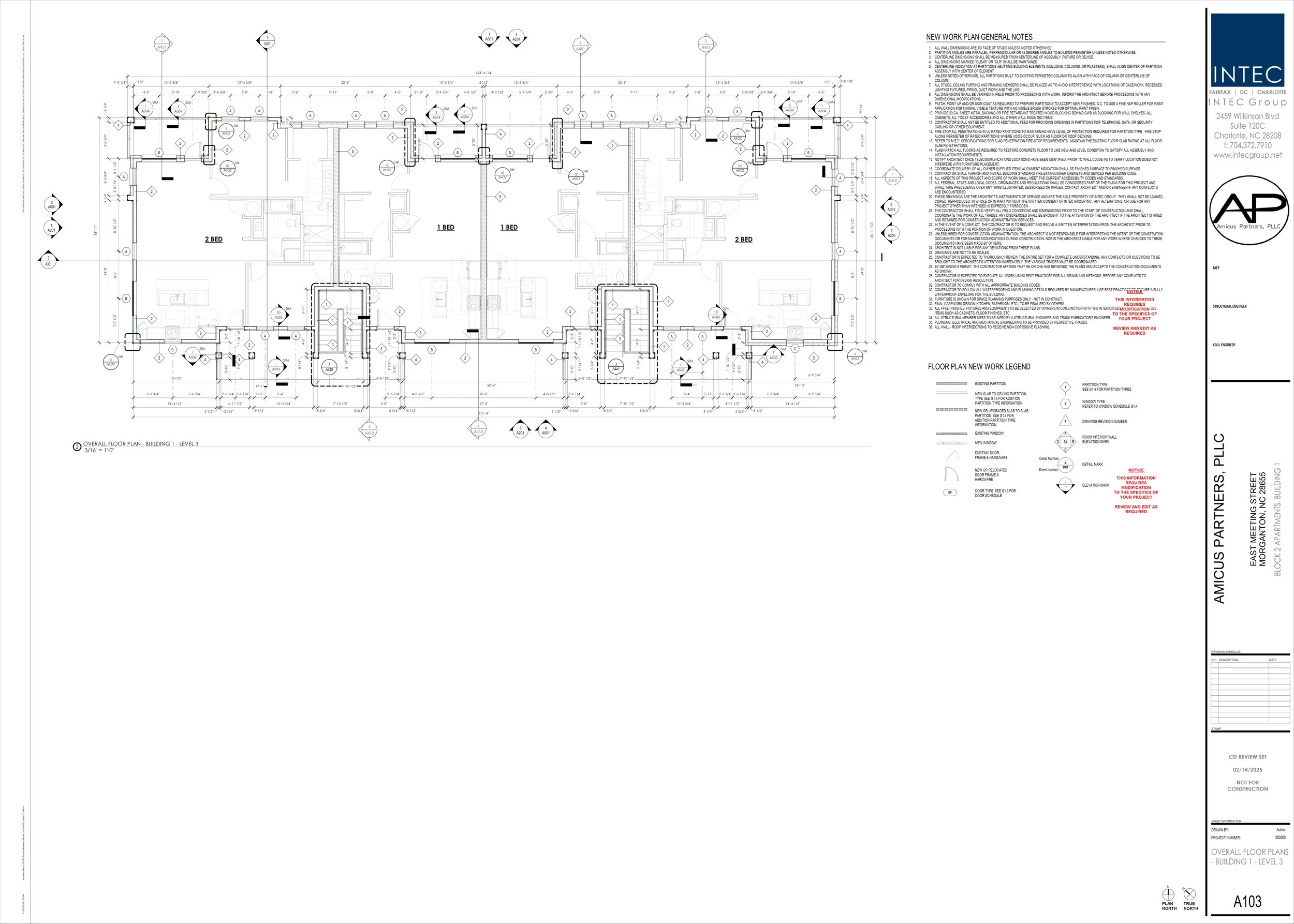
Focus on this project went to the development of unit plans that would fill 2 variations of a predetermined shell used for 4 of the 5 apartment buildings. A 1-bedroom unit and a 2-bedroom unit would be grouped together and repeated up 4 floors to make up the 2 smallest buildings, while the larger 2 buildings would mirror this configuration, doubling the number of apartments within.

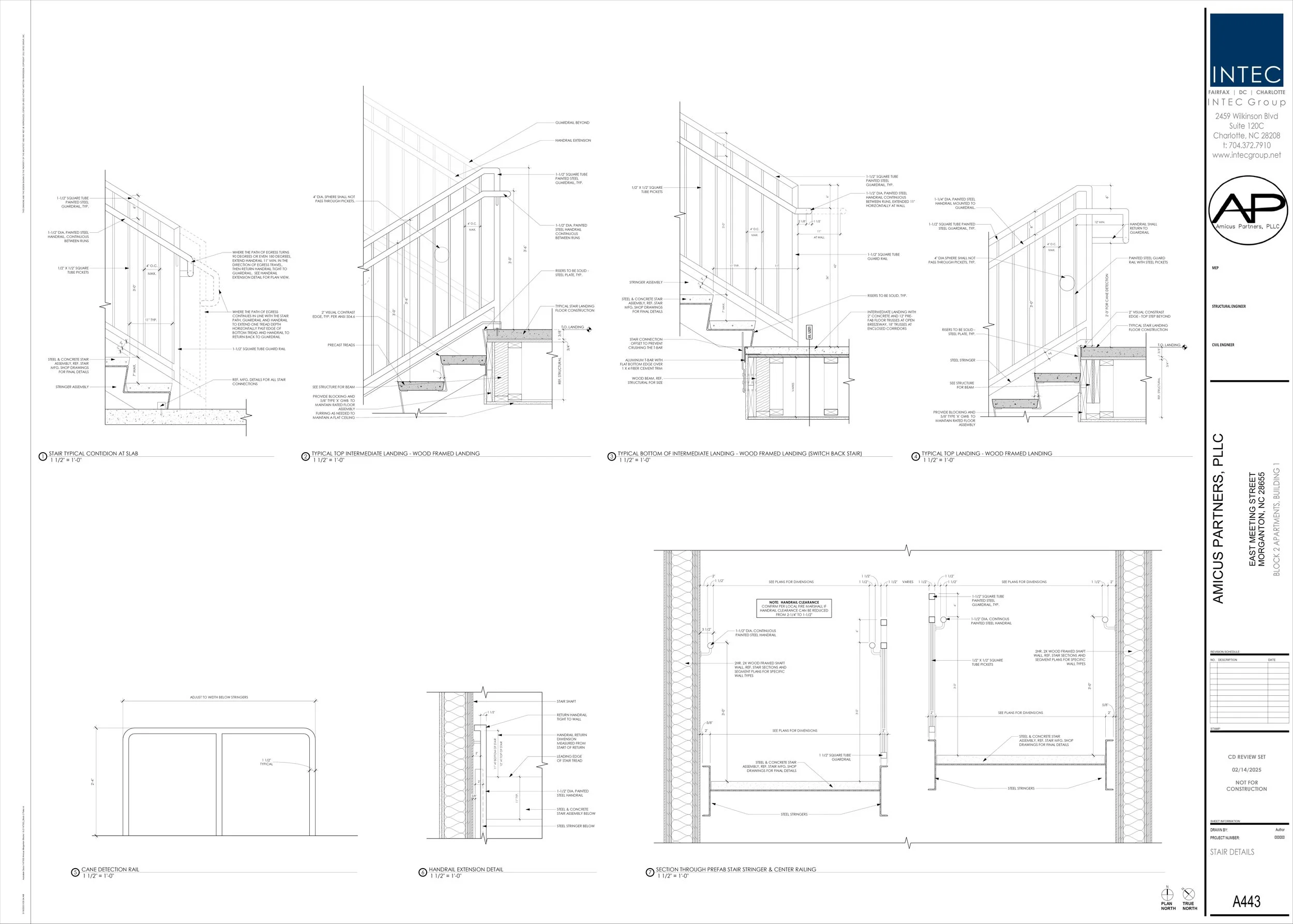
City building codes gave limitations to the facades, regulating materials, percentage of windows, expressions of amenities, and more, requiring a continuous dialogue with the city and our development partners while the project developed. Designs needed to comply with regulations while appealing to our partners’ vision for the site. Iterations of the facades changed as the conversations continued, and diagrams were developed to present each concept’s adherence to the city’s codes.

Associate Architect - INTEC Group

Multifamily Housing

Morganton, NC

Summer 2023 - Summer 2024

Iterations

Next
Next

New INTEC Office, Landscaping