Associate Architect - INTEC Group

Multifamily Housing

Asheville, NC

Spring 2024

45 Southside

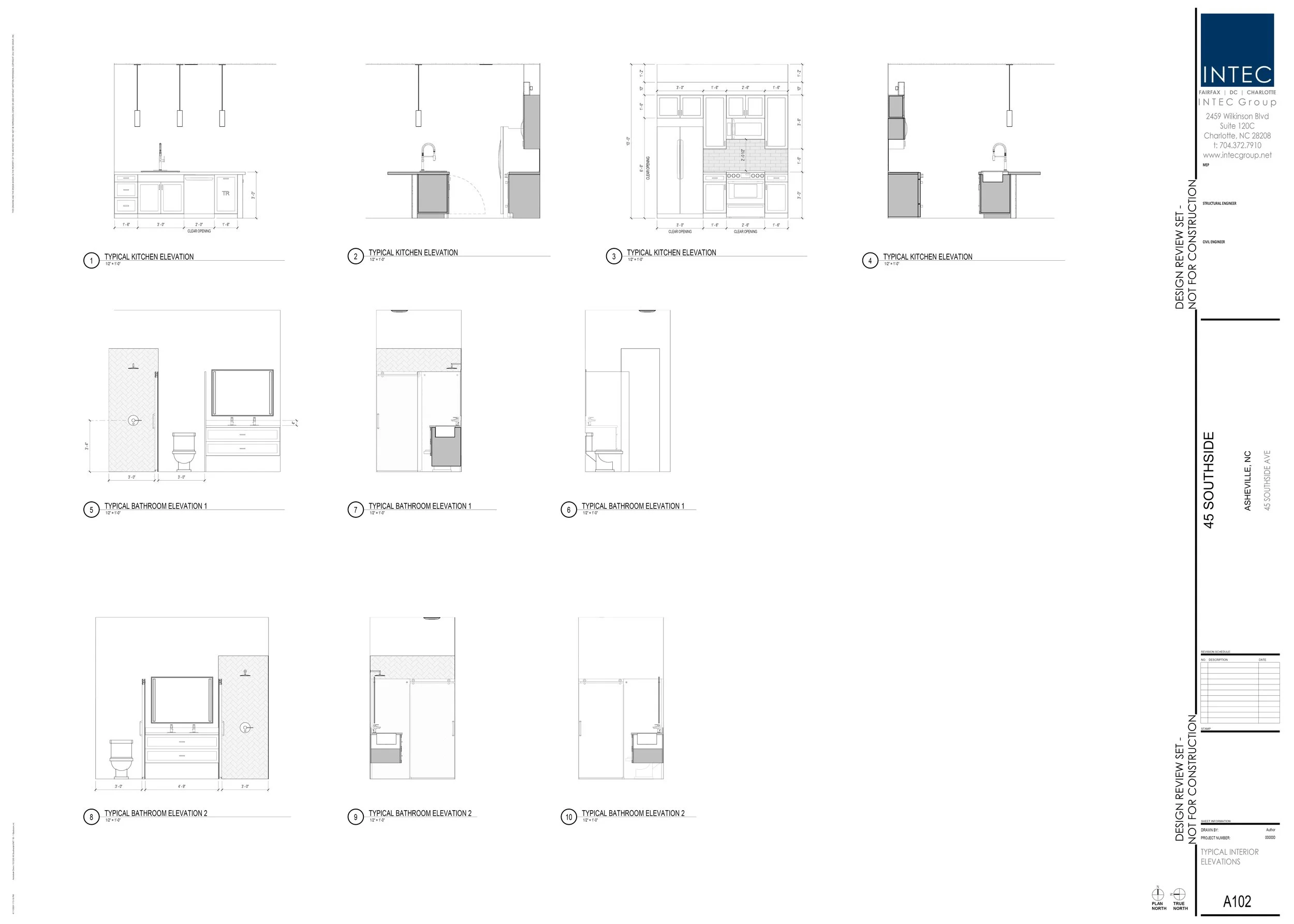
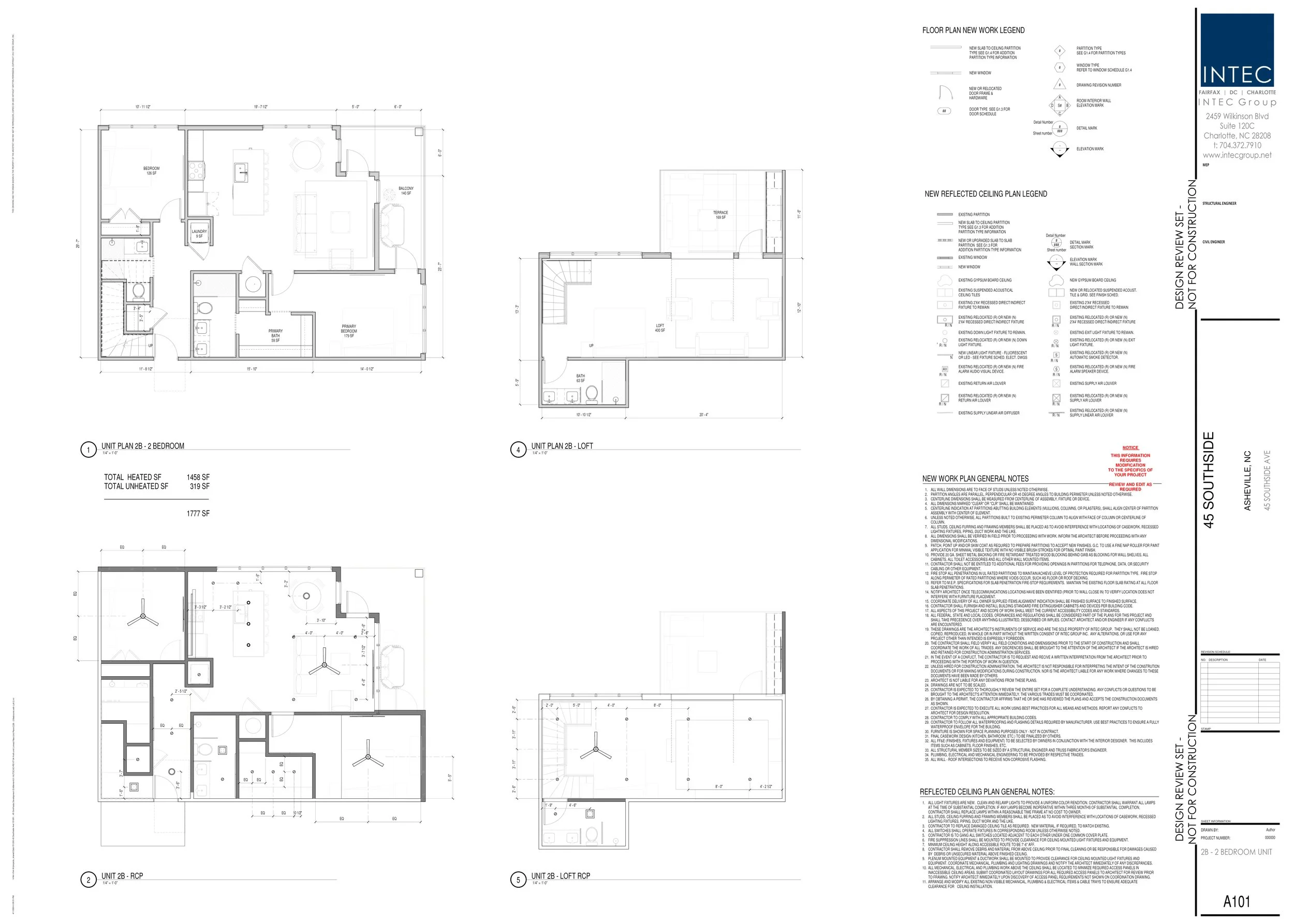
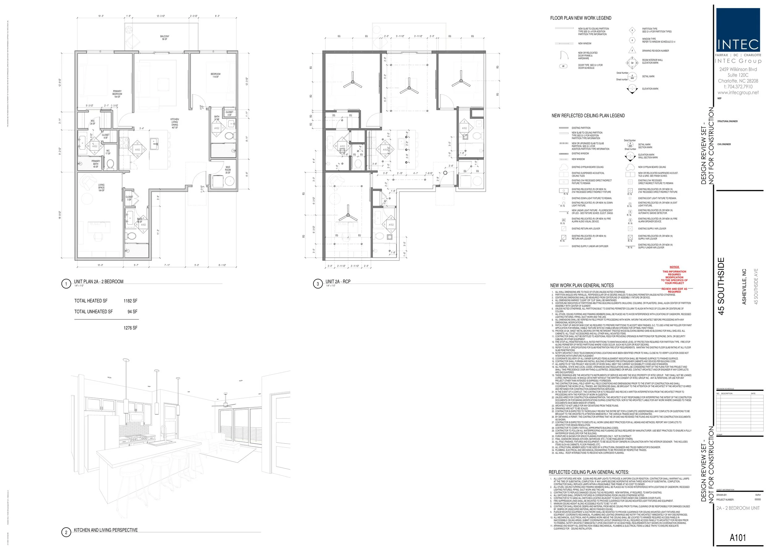
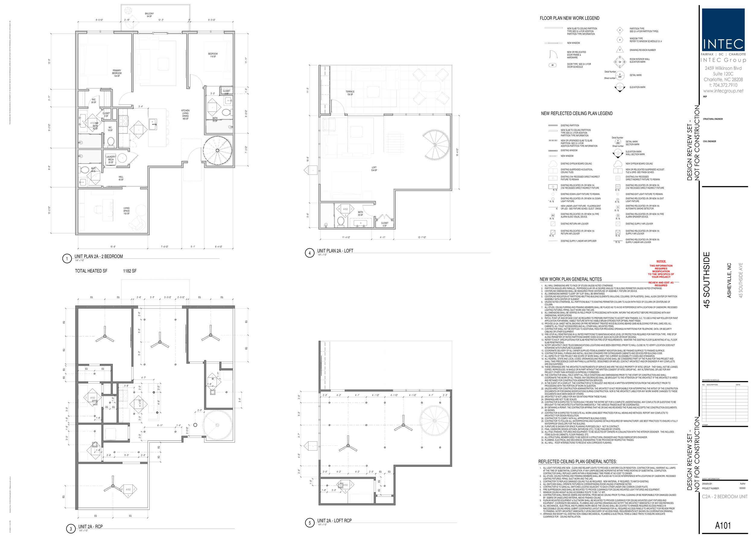
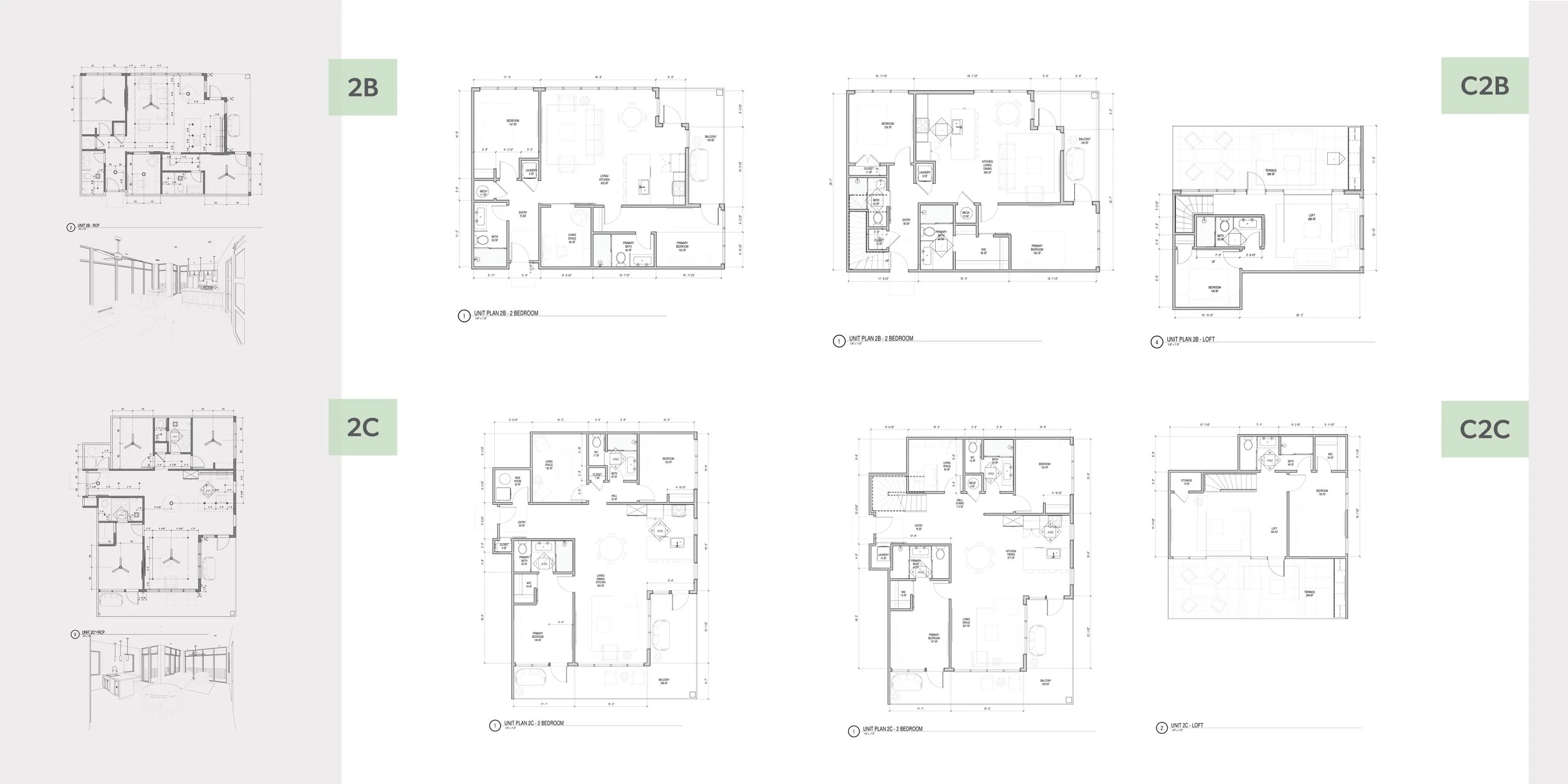
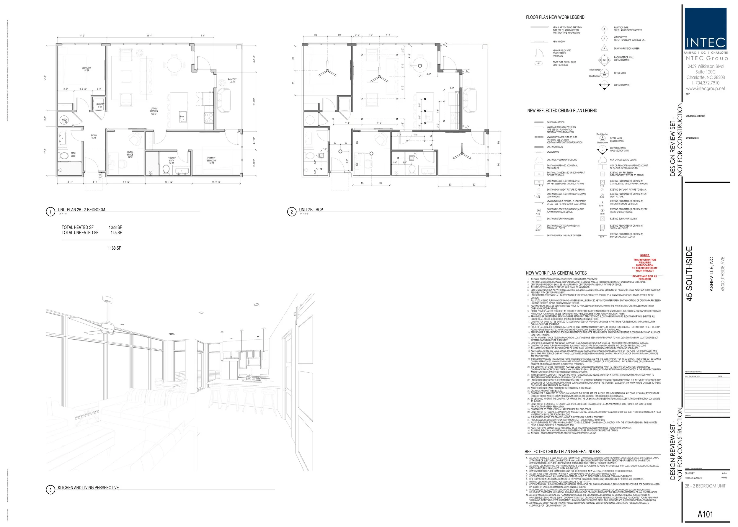
45 Southside is a development combining permanent and temporary living spaces placed above ground floor retail locations. The first three residential floors were designated for apartments, while the top floor would consist of condos for sale. Repeating the unit plans up for each residential floor meant the layouts of these unit plans needed to be functional for both temporary and long term living.

Previous
Previous

New INTEC Office, Landscaping

Next
Next

Kingston